※パースは図面を基に描き起こしたもので、実際とは多少異なります。

※パースは図面を基に描き起こしたもので、実際とは多少異なります。

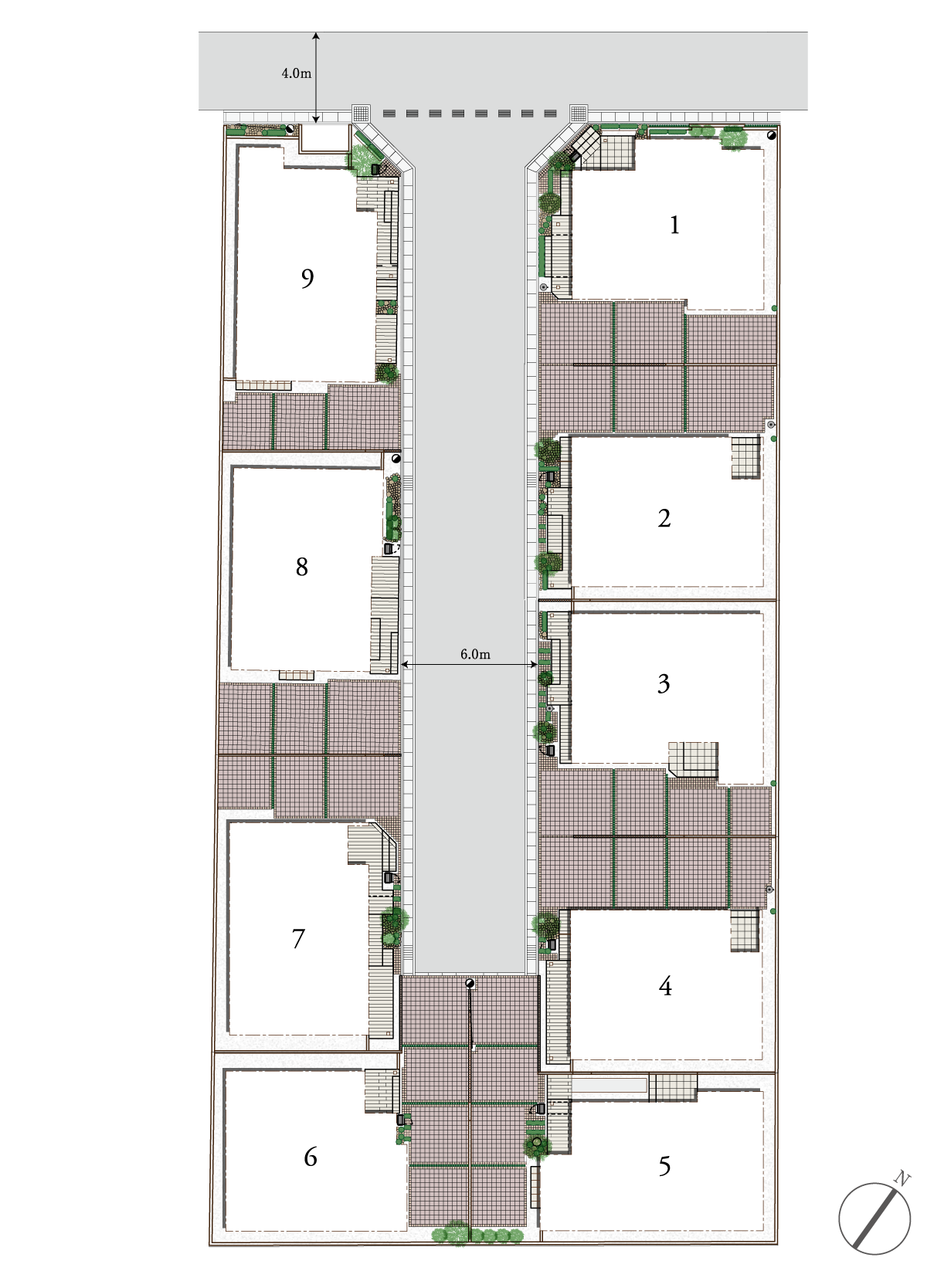
ポラスの新築分譲住宅 (仮称)マチエ上尾プロジェクト

【予告広告】
■JR高崎線・湘南新宿ライン「上尾」駅 徒歩15分
■全9邸のサスティナブルな街
■カースペース2台号棟あり
■長期優良住宅認定取得予定

◆ハイブリッド給湯器「エコワン」標準採用
◆リビング・ダイニング「床暖房」標準設置
◆1階掃き出し窓に電動シャッター標準設置

所在地 埼玉県上尾市本町2丁目863番、952番4(地番)他
交通 JR高崎線「上尾」駅まで徒歩15分
アクセス ●上尾駅より大宮駅まで【ラッシュ時: 8分 高崎線(国府津行)利用。】
●上尾駅より池袋駅まで【ラッシュ時: 33分 湘南新宿ライン特別快速(小田原行)利用。】
●上尾駅より上野駅まで【ラッシュ時: 37分 高崎線(品川行)利用。】
●上尾駅より新宿駅まで【ラッシュ時: 38分 湘南新宿ライン特別快速(小田原行)利用。】
●上尾駅より東京駅まで【ラッシュ時: 40分 高崎線(国府津行)利用。】